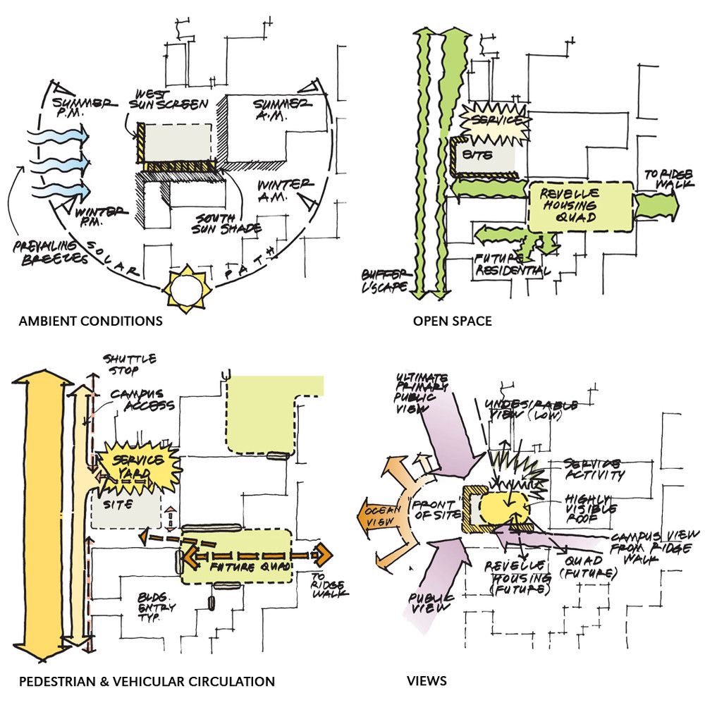
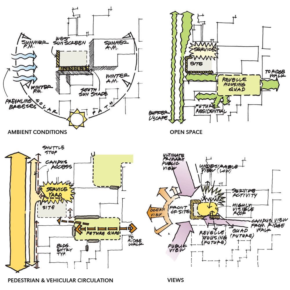
건축에서의 부지 분석은 설계 결정을 위한 정보를 제공하기 위해 부지의 물리적, 환경적, 법적, 사회적 조건을 체계적으로 연구하는 과정이다.
이는 구획, 지형, 기후, 식생, 접근성, 유틸리티, 맥락에 대한 데이터를 지도, 측량, 현장 방문을 통해 수집하는 것으로 시작된다.
수집된 정보는 일조 경로, 풍향 패턴, 조망, 소음, 배수 등을 보여주는 도면을 통해 분석되어 기회와 제약 조건을 식별합니다.
이 분석은 건물 방향, 매스 구성, 동선 계획, 조경 전략을 안내하여 설계가 환경, 규정, 사용자 요구에 효율적으로 대응하도록 하면서 위험을 최소화하고 부지 잠재력을 극대화합니다.













'Fun & Other' 카테고리의 다른 글
| 얼굴 마사지 루틴 (0) | 2025.11.09 |
|---|---|
| 남성을 위한 세련된 오피스 룩 컬러 조합 11가지: (0) | 2025.11.05 |
| 인간의 손을 상세하게 재현한 해부학적 모형. (0) | 2025.11.05 |
| 정신 건강을 위한 가장 좋은 방법 (0) | 2025.11.02 |
| 러너 이미지 생성 프롬프트, 제미나이 (0) | 2025.10.24 |
| Color theory (0) | 2025.10.23 |
| 레몬으로 발 곰팡이를 없애세요 (0) | 2025.10.20 |
| 죽은 말 이론: 환상 대신 현실을 선택하다 (0) | 2025.09.23 |
취업, 창업의 막막함, 외주 관리, 제품 부재!
당신의 고민은 무엇입니까? 현실과 동떨어진 교육, 실패만 반복하는 외주 계약,
아이디어는 있지만 구현할 기술이 없는 막막함.
우리는 알고 있습니다. 문제의 원인은 '명확한 학습, 실전 경험과 신뢰할 수 있는 기술력의 부재'에서 시작됩니다.
이제 고민을 멈추고, 캐어랩을 만나세요!
코딩(펌웨어), 전자부품과 디지털 회로설계, PCB 설계 제작, 고객(시장/수출) 발굴과 마케팅 전략으로 당신을 지원합니다.
제품 설계의 고수는 성공이 만든 게 아니라 실패가 만듭니다. 아이디어를 양산 가능한 제품으로!
귀사의 제품을 만드세요. 교육과 개발 실적으로 신뢰할 수 있는 파트너를 확보하세요.
캐어랩