Greenhouse 원격 관리시스템 전원부 5
전원(electric power source , 電源)이란 전력을 공급하는 것을 말한다. 부하(負荷)의 반대말이다. 전원은 모든 전자장비에서 가장 중요하다. 필요한 전원을 공급하는 것, 제품의 안전성을 보장하는 것, 다른 제품에 영향을 끼치지 않는 것 등은 설계할 때 충분히 고려해야 한다.
전원(electric power source , 電源)이란 전력을 공급하는 것. 부하(負荷)의 반대말이다. 다음과 같이 분류할 수 있다. ① 직류전원과 교류전원:전지와 같이 직류를 내는 것과 일반 전력망(電力網)과 같이 교류를 공급하는 것이 있다. ② 전압원(電壓源)과 전류원:부하 전류의 크기에 따라서 전압이 변화하지 않는 것이 전압원이고, 부하 전압의 크기에 따라서 전류가 변화하지 않는 것이 전류원이다. 이상적인 것은 존재하지 않으나 전압원으로 간주되는 것은 많다. ③ 정전원(定電源)과 가변 전원:전압 · 주파수 등이 일정한 것과 가변적인 것이 있다. 이런 것 외에 전압 ·전류 등의 크기, 변동률 ·안정도, 교류의 경우는 다시금 주파수 ·상수(相數) ·파형(波形) 등에 따라 성질을 표현할 수 있다.
Greenhouse 원격관리 시스템을 구현하는 전체 포스팅은 아래와 같이 진행합니다. 참고하세요.
Greenhouse 원격 관리시스템 센서와 액츄에이터 3
Greenhouse 원격 관리시스템 소프트웨어 테스트 7
Greenhouse 원격 관리시스템 서버프로그램과 카메라 8
5.5 전원부
전원부는 Greenhouse 원격관리시스템에 전원을 공급하고, 외부의 여러 가지 액츄에이터를 구동하는데 필요한 220V 전원을 공급한다. 액츄에이터 구동을 위한 출력을 제어하고, 예약 설정에 맞춰 구동을 하고, 이상 상황 발생시 전원 공급을 중단하는 기능을 가지고 있다. 이러한 기능을 위해 전원공급기, 누전차단기, 퓨즈, 무접점 릴레이를 사용하였다. 완벽한 동작을 보장하기 위해 향후 추가되어야 할 기능으로 액츄에이터를 구동했을 때 실제 구동하는지(커런트 구동) 여부와 고장을 알 수 있는 회로가 추가되어야 한다. 전원부 개발에 사용한 부품에 대한 전기적 스펙, 기구도 등에 대해 설명한다.
Greenhouse 원격관리시스템은 2개의 전원공급기를 사용한다. 라즈베피파이 전원과 센서 전원을 공급하는 DC5V, DC24V 전원을 공급하는 파워서플라이 1과 개폐기 전원 DV24V, 2.6A~3.5A를 공급하는 파워서플라이 2를 사용한다.
파워서플라이 1
시스템 전원과 센서 전원을 공급하는 VSF50-BHW 전원 공급기에 대해 설명한다. VSF50-BHW 의 대표적인 사양은 아래와 같다. 세부적인 사양은 이 링크를 확인하여 살펴볼 수 있다.
○ 제조사 : FineSuntronix
○ 시리즈 : VSF
○ 제품타입 : 케이스형(일반)
○ 출력수 : Dual output
○ 출력전압(2중) : 5V, 3A/24V, 1.5A
○ 출력전류 : 3A↓


○ 기구 Dimension 과 상세 스펙 참고 링크 참고

파워서플라이 2
Greenhouse의 개폐기 사용을 위한 전원공급기는 Mean Well 사 제품인 RD-125B를 사용한다. 마찬가지로 2ch 전원 DC5V와 DC24V를 공급하는데 주 용도는 개폐기에서 사용하는 높은 전류를 공급함이 목적이다. 상세 사양과 데이터 쉬트는 다음 링크를 참고한다.

Mean Well 파워 서플라이 RD-125B 상세 스펙은 아래와 같다. 중요한 것은 Current Range로 출력 전류, 그러니까 부하가 당겨 쓰는 커런트가 범위 안에 없을 경우 파워 서플라이는 동작하지 않는다. 예를 들면 5V 출력전압에 Current Range가 1A~3A라면 부하가 구동하면서 1A 이상의 커런트를 사용해야 파워서플라이가 동작한다는 말이다. CPU 구동으로 0.5A 만 사용할 경우 Current Range가 맞지 않는 것이다. 다행히 RD-125B 파워서플라이는 Current Range가 0A~ 이므로 초기부터 마이크로 컨트롤러 보드로 사용할 수 있다.
제조업체 : Mean Well
RoHS : Y
제품 : Switching Supplies
출력 전압-채널 1 : 5VDC
출력 전압-채널 2 : 24VDC
Current Range CH1 5V, 0~10A
Current Range CH2 24V, 0~50A
출력 수 : 2 Output
출력 전력 : 125 W
개방 프레임/봉쇄 : Enclosed
입력 전압 : 88VAC to 132VAC
출력 전류-채널 1 : 4.6A
출력 전류-채널 2 : 4.6A
장착 스타일 : Chassis
길이 : 199mm
너비 : 98mm
높이 : 38mm
승인 : EN60950-1
시리즈 : RD-125
브랜드 : Mean Well
단위 중량 : 700 g
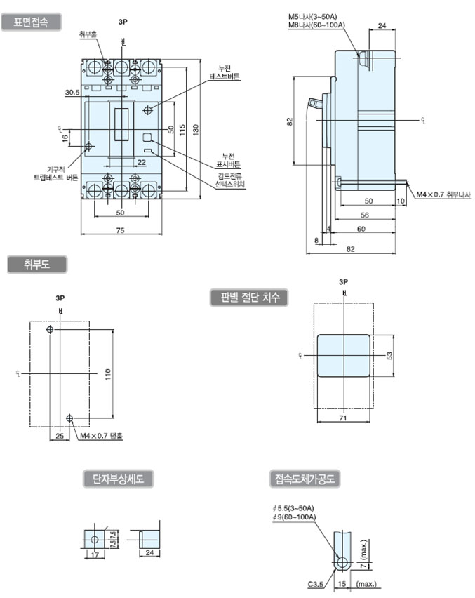
5.5.2 누전차단기(Circuit Breaker)
누전차단기는 표준형 누전차단기 HiGS32 을 사용한다. 자세한 Spec을 아래에 나타낸다.
|
품명 |
표준형 누전차단기 HiGS32 UAG 30C2P(HiGS32) |
|
모델명 |
HiGS32 |
|
극수 |
2P |
|
정격차단전류 |
(kA)220V:10, 380V:7.5, 460V:5 |
|
정격전류(A) |
5,10,15,20,30 |
누전차단기 외관 이미지



5.5.3 퓨즈(Fuse)
퓨즈는 과전류가 흐를 때 전류 흐름을 차단하는 역할을 한다. 상세한 스펙을 아래에 나타낸다. Spec에서 규정한 전류를 넘어서면 퓨즈가 단락 되어 전기가 통하지 않게 된다.
|
품명 |
휴즈홀더 HY-F15-1A |
|
모델명 |
HY-F15-1A |
|
제품요약 |
2P |
|
브랜드 |
HYNUX |


5.5.4 무접점 릴레이 (Solid State Relay, SSR)
반도체 릴레이 (solid state relay, SSR)는 전기기계 릴레이와 다르게 움직이는 부품을 포함하지 않는 전자 스위치이다. 무접점 릴레이라고도 한다. 반도체 릴레이의 종류는 빛에 반응하는 반도체 릴레이, 전압에 반응하는 반도체 릴레이와 두 가지 모두 반응하는 반도체 릴레이가 있다.
빛에 반응하는 반도체 릴레이는 부하에서 광학적으로 분리된 상태이며 낮은 전압 신호로 제어한다. 일반적으로 빛에 반응하는 반도체 릴레이에서 제어 신호는 빛에 반응하는 다이오드가 동작하도록 발광 다이오드에 전압을 가한다. 광다이오드가 턴온되면, 연속된 사이리스터, 실리콘 제어 정류기, 금속 산화막 반도체 전계효과 트랜지스터의 스위치가 부하에 연결된다.

본 제품은 Single-Phase Solid State Relay로 25A등급이며, 낮은 동작 전류 가지고 있으며, 내장된 opto-couple으로 절연되어 있어 3.3V의 낮은 출력으로 제어하게 되어 있어 아두이노나 라즈베리파이로 추가 회로 없이 바로 동작시킬 수 있다.
불연성의 외부의 플라스틱 커버는 릴레이를 안전하게 보호하며, 충격이나 진동에 강하게 디자인되었으며, 스크류 터미널 블럭을 통해 전선을 연결할 수 있으며, 낮은 입력 동작 전류로 인해 쉽게 다양한 디지털 회로와 연결할 수 있다. SSR 릴레이는 비접촉식이기 때문에 기존의 기계식 릴레이에 비해 수명과 성능(낮은 전자기파의 영향, 빠른 속도 등)이 좋다고 알려져 있다.
SSR 상세 Specification
|
Features: Highly reliable, compact size designed to offer users maximum simplicity General Data: Model: SSR-25DA Input Data: Output Data: |
아래 기구도면을 참고한다.

5.5.5 SSR 회로 연결도

5.5.6 릴레이(Relay)
제어용 릴레이는 개폐기의 정방향, 역방향 제어를 위해 2개를 사용하였다. 사용된 릴레이는 KACON HR705-2P 250 VAC, Coli 전압 24V DC를 사용하였다. 외관 이미지와 대응하는 소켓을 나타냈고 성능 및 사양을 표로 나타내었다.


외형 치수도 및 배선도


실제 사용제품은 대치 가능한 릴레이 성은 전자의 MY-2SL 8핀 릴레이며 두 개의 접점(2 Pole)을 가지고 있다. 아래 이미지의 SMY 품명은 MY 품명과 동일하다. 외관 이미지와 상세 Specification 은 아래와 같다.

여기까지 전원부 설명을 마치기로 한다. 전원부를 구성하는 부품을 중심으로 설명하였으니 스펙이다 도면 위주로 검토를 하고 상세 사용방법이나 동작 설명은 구성품 테스트와 배선도에서 설명하기로 한다.
여기까지 하고 미팅이 있어서 외출하기로 한다. 다음 포스팅부터는 재미있는 시스템 제작으로 넘어간다. 이 재미있는 걸 지금 포스팅을 하네~^^
'개발자 > 스마트팜' 카테고리의 다른 글
| Greenhouse 원격 관리시스템 안드로이드 앱 9 (0) | 2020.08.25 |
|---|---|
| Greenhouse 원격 관리시스템 서버프로그램과 카메라 8 (0) | 2020.08.24 |
| Greenhouse 원격 관리시스템 소프트웨어 테스트 7 (0) | 2020.08.21 |
| Greenhouse 원격 관리시스템 연결도 6 (0) | 2020.08.20 |
| Greenhouse 원격 관리시스템 액츄에이터 4 (0) | 2020.08.18 |
| Greenhouse 원격 관리시스템 센서와 액츄에이터 3 (0) | 2020.08.17 |
| Greenhouse 원격관리시스템 Hardware 2 (0) | 2020.08.14 |
| Greenhouse 원격관리시스템 개요 1 (0) | 2020.08.13 |
취업, 창업의 막막함, 외주 관리, 제품 부재!
당신의 고민은 무엇입니까? 현실과 동떨어진 교육, 실패만 반복하는 외주 계약,
아이디어는 있지만 구현할 기술이 없는 막막함.
우리는 알고 있습니다. 문제의 원인은 '명확한 학습, 실전 경험과 신뢰할 수 있는 기술력의 부재'에서 시작됩니다.
이제 고민을 멈추고, 캐어랩을 만나세요!
코딩(펌웨어), 전자부품과 디지털 회로설계, PCB 설계 제작, 고객(시장/수출) 발굴과 마케팅 전략으로 당신을 지원합니다.
제품 설계의 고수는 성공이 만든 게 아니라 실패가 만듭니다. 아이디어를 양산 가능한 제품으로!
귀사의 제품을 만드세요. 교육과 개발 실적으로 신뢰할 수 있는 파트너를 확보하세요.
캐어랩